
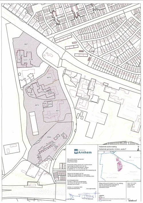
Gemeente Arnhem legt de Wet voorkeursrecht gemeenten (Wvg) op in het gebied ten westen van de Heijenoordseweg. Dat is voorlopig, daarna kan het op een later moment ook bevestigd worden door de raad.
Arnhem staat voor een grote woningbouwopgave, waarbij de sociale woningbouw beter wordt verdeeld in de hele stad. Daarnaast is er extra ruimte noodzakelijk voor zowel speciaal- als regulier onderwijs.
Vanwege de wensen voor het gebied en het belang van een samenhangende visie voor dit prachtige landschappelijke gebied is besloten om de planontwikkeling op te pakken. Volgens het college is het naast woningbouw van belang dat er voldoende ruimte is voor goed onderwijs voor ieder Arnhems kind. De gemeente wil daarbij meer grip krijgen op de transformatie door toepassing van de Wet voorkeursrecht gemeenten (Wvg). Door het vestigen van een voorkeursrecht worden ongewenste verkopen en grondspeculatie tegengegaan en houdt het college het tempo van de uitvoering in de hand.
Kijk onderaan voor het hele beeld van Heijenoordseweg.
Op 10 oktober 2023 is de Woonvisie
in Arnhem voorgesteld. Binnenkort wordt dit plan aan de raad voorgelegd voor goedkeuring. Het doel is om meer sociale huurwoningen te bouwen in sterke wijken en buurten, vooral in de omgeving van de westkant van de Heijenoordseweg. Deze gebieden hebben momenteel weinig sociale huurwoningen. De ambitie is om een groot deel van de nieuwe woningen aan de westkant van de Heijenoordseweg te bestemmen voor sociale huurwoningen.
Daarnaast speelt er het belang van goede onderwijshuisvesting.een school voor speciaal voortgezet onderwijs aan de Heijenoordseweg, heeft een sterke groei van het leerlingenaantal en heeft uitbreiding nodig in de directe omgeving van het gebouw. De Heijenoordschool krijgt nieuwbouw op de hoofdlocatie aan de Gentiaanstraat. En tot slot wordt voor degezocht naar een permanente locatie aan de westzijde van Arnhem.






