
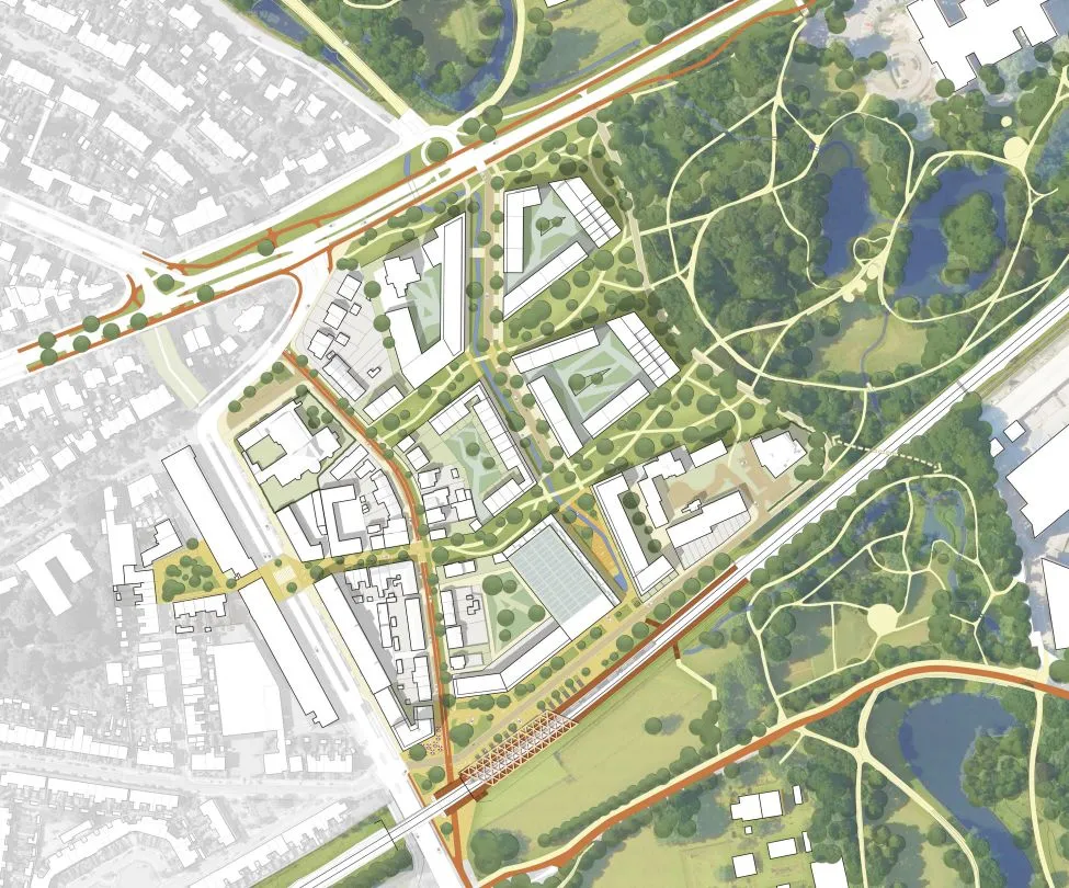
500 nieuwe woningen, tien keer zoveel meer groen, vanaf elk huis makkelijk het park inlopen, het station beter te bereiken en zorgen voor minder drukte door auto in de buurt. Dat zijn een aantal van de investeringen die staan in de concept gebiedsvisie waar het college aan werkt voor Schaapsdrift en omgeving.
Om tot de realisatie te komen van het plan kunnen 25 woningen niet behouden blijven. Daarmee geeft het ook de duidelijkheid aan de buurt over woningen die niet behouden kunnen blijven.
Wethouder Cathelijne Bouwkamp: “De woningnood is hoog en we moeten ervoor blijven zorgen dat Schaapsdrift alle uitdagingen van de aankomende tientallen jaren aankan. Met deze visie investeren we in woningen maar ook in groen, in betere verbindingen met de rest van de stad en de parken. Met dit plan investeren we flink in de buurt en zorgen we ook voor duidelijkheid.”
Eigenaren en verhuurders wiens huis volgens dit concept-plan niet behouden kan worden, zijn inmiddels uitgenodigd om verder te praten over de vervolgstappen, een sociaal plan en ideeën die zij zelf zien. “Ik zou eigenaren en bewoners dolgraag willen zeggen dat er een simpelere manier was. Maar deze besluiten zijn nodig om te blijven zorgen voor voldoende woningen voor al die Arnhemmers die een woning zoeken en daarnaast ook te investeren in deze buurt voor binnenkort, maar ook voor de aankomende tientallen jaren,” aldus Bouwkamp.
Eind november is de concept-gebiedsvisie gereed en neem de raad er een besluit over.





